家族みんなで、またご友人と一緒にしっかりくつろげる、大きなソファを置きたいけれど、
ソファの最適な大きさがわからない、というお悩みを、ショールームにご来店いただくお客様からよく伺います。
特に、お引越し前にソファを選ぶ場合などは、全体のイメージがつかみづらく、ソファのサイズに迷ってしまいますが、事前に以下のポイントをしっかり確認しておけば、スムーズに選ぶことができます。

【1】寸法の把握
部屋のサイズ(図面、間取り)
ご自宅の間取りから、動線や印象を考慮してソファの配置を考えます。
寸法のわかる図面をお持ちでない場合は、実際にお部屋のサイズを測ってみましょう。
ソファ以外の家具のサイズ(購入済み家具、既存の家具)
すでにお持ちの家具や、ご購入済の家具のうち、ダイニングテーブルやリビングボード、TVボードなど、特に大きいサイズのものは、ソファのレイアウトにも大きく影響を与えます。
それぞれの家具の横幅・奥行き・高さを事前に測っておけば、ソファのサイズ選びに役立ちます。

【2】動線
家具のサイズや配置を決める際、もっとも重要なのは適切な動線の確保です。
お部屋の寸法に対して、大きすぎる家具を置いてしまうと、毎日の生活に必要な動線を塞いでしまう可能性があります。
また、ダイニングテーブル、ソファ、お部屋の入り口などを結ぶ主要な動線は、回り道なく最短距離で移動できるようにすることで、快適に生活することができます。
適切な動線を確保するためには、人間工学に基づいた寸法の目安を参考にしてください。
【3】レイアウトのポイント
全体の寸法がイメージできたら、ソファのレイアウトを考えてみましょう。

家族構成・ライフスタイル
家族構成やライフスタイルによって、例えば大人数で和気藹々と過ごしたいのか、ソファにしっかりと体を預けて、プライベートな空間を満喫したいのかによっても、オススメのソファや配置は変わって来ます。
視線の抜け
特に、お部屋の中心の配置であれば、全体の視線の抜けを考慮する必要があります。例えば、ロータイプを選んで空間を広々と見せたり、あえてハイバックタイプを選ぶことで、空間に区切りをつけることもできます。
採光
窓からの採光を重視して、極力窓を隠さないようにソファを配置する、ロータイプのソファを選ぶなどの工夫も必要です。
ここまでご説明したポイントを踏まえて、実際の図面の例を見ていきましょう。
#20畳 リビング・ダイニング

①部屋に入った時の視線
部屋に入った時正面にソファがあると圧迫感を感じやすいため、入り口からの直線上を避けて配置。
親子扉の小さい方のドアは開閉する事が少ないため、小さいドアの前までソファを配置する事でソファの横幅を広く取れる。
②リビングとダイニングの関係
ダイニングテーブルとソファの間は、頻繁に通る場所(主動線)のため、広めに取る。
図面の距離であれば、大人二人が余裕を持ってすれ違うことができる。
③コーナーの向き
壁に沿ってコーナーを配置すると、部屋全体の空間を広々使うことができる。
※リビングとダイニングの空間を明確に分ける場合は反対に、コーナーをダイニング側に配置する。
④テレビとの距離
お使いのテレビの大きさに合わせて適切な距離にソファを配置しましょう。
ソファを手前に配置する事で背後にスペースができるため、収納家具やディスプレスペースとして、使用することが可能。
※部屋全体を使ってリビングスペースを作る場合は、ソファを後ろに寄せて配置。
ソファ前のスペースを広く取る事ができるため、スツールや一人掛けソファの設置やお子様のプレイスペースの確保も可能。
<この間取りで使用したソファ>
OBRYS:2.5P+3P片肘 W2530xD1900
#️14畳 リビング・ダイニング

①部屋に入った時の視線
20畳と同様、入り口からの直線上を避けてソファを配置。
②リビングとダイニングの関係
主動線のため広めに取る。
③ソファの高さ
視線をふさがないロータイプのソファであれば、部屋を広く見せられる。
※ソファにしっかり身体を預けて座りたい方や、リビングとダイニングの空間を分けて使いたい場合は、ハイバックタイプもおすすめ。
④ソファの推奨サイズ・向き
動線とカーテンのスペースを考慮するとW2200mmまでのソファがおすすめ。また3人掛けとスツールでL字ソファのように使用する事もできる。
スツール・カウチは入口から奥の壁側や窓側に置き、メインの動線をふさがないように置くのが基本。
リビングとダイニングを仕切らずに置きたい場合は、洋室の前にソファを配置することも可能です。
⑤テレビとの距離
テレビが40-50インチであれば丁度良い距離。
※ソファの前のスペースを広くとりたい場合は、リビングテーブルを設置するのではなく、ソファのすぐ側で使用できるサイドテーブルがおすすめ。
コーナーソファとカウチソファの選び方については、こちらもご覧ください。
<この間取りで使用したソファ>
MAROONCOUCH:W2140xD1530xH720xSH400
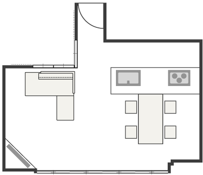
#10.6畳 リビング・ダイニング

L字のソファを置きたいけれど、部屋のスペースが限られている場合は、コンパクトな2人から2.5人掛けソファにスツールを合わせて使うこともできます。
①部屋に入った時の視線
入り口の直線上を避けてソファを配置。
②リビングとダイニングの関係
主動線のため、広めにとる。(900mm以上がおすすめ)
③ソファの高さ
視線をふさがないロータイプソファは、部屋を広々と見せられる。
④ソファの推奨サイズ
動線とカーテンスペースを考慮すると、ソファサイズはW1600前後がおすすめ。
⑤ソファの推奨向き
片肘ソファの場合は、動線からソファへのアクセスをスムーズにするため、窓側を肘にするのがおすすめ。
⑥テレビとの距離
ソファ前にスツールを設置すると、TVボードの開閉に支障がでる場合ある。スツールを使用しない時は動線の妨げにならない場所へ常置し、必要な時だけ移動させるとよい。
※ソファに合わせてテーブルを置きたい場合は、サイドテーブルの設置がおすすめ。
◎お部屋の間取りを活かし、リビング横の部屋を独立した一室として使いたい場合は、違った配置も可能。
また、この配置であればスツールをソファの前に置いても問題なし。
テレビがソファから斜めの配置の場合、座って左肘だとTVが見やすい。

<この間取りで使用したソファ>
UK:2.5P W1590xD780xH690xSH340 + STOOL W550xD750xH340
レイアウトのコツを押さえて、最適なL字ソファを選びましょう。
今回ご紹介したレイアウトは、あくまでも一例です。
お部屋の間取りや、生活スタイルに合わせたL字ソファを選び、
快適なお部屋づくりをイメージしましょう。
FLANNELSOFAでは、図面や間取り図などを元に、
ソファサイズやレイアウトのご相談にお応え致しております。
お悩みの際は、ぜひお気軽にFLANNELSOFAへご相談くださいませ。
大切なソファ選びのサポートに尽力させていただきます。












